您好,欢迎进入鄂尔多斯市城投房地产开发有限公司

首页 - 工程展示 - 悦和城公共租赁住房项目

户型

来源:

发布时间:2021-08-02

A户型

B户型

C户型

D户型

E户型


F户型

G1户型

G2户型

G3户型


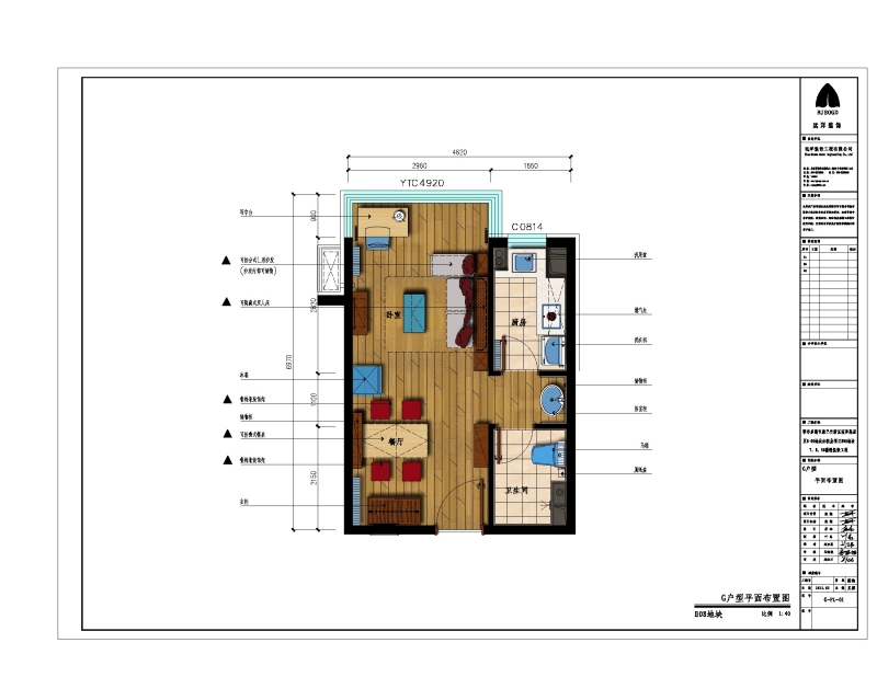
G户型

上一篇: 悦和城公共租赁住房项目

下一篇:航拍

  • 举报邮箱:ctqxzj @163.com
  • 举报电话:0477-8399245
  • 联系电话:8398369
  • 邮 编:017000
  • 技术支持:海瑞科技
  • 公司地址:鄂尔多斯市伊金霍洛旗城投房地产公司